Продажа однокомнатной квартиры 35,81 кв.м.,5/8 этаж, улица Курганная. Симферопольский район.
Описание
Общие характеристики 🏙️
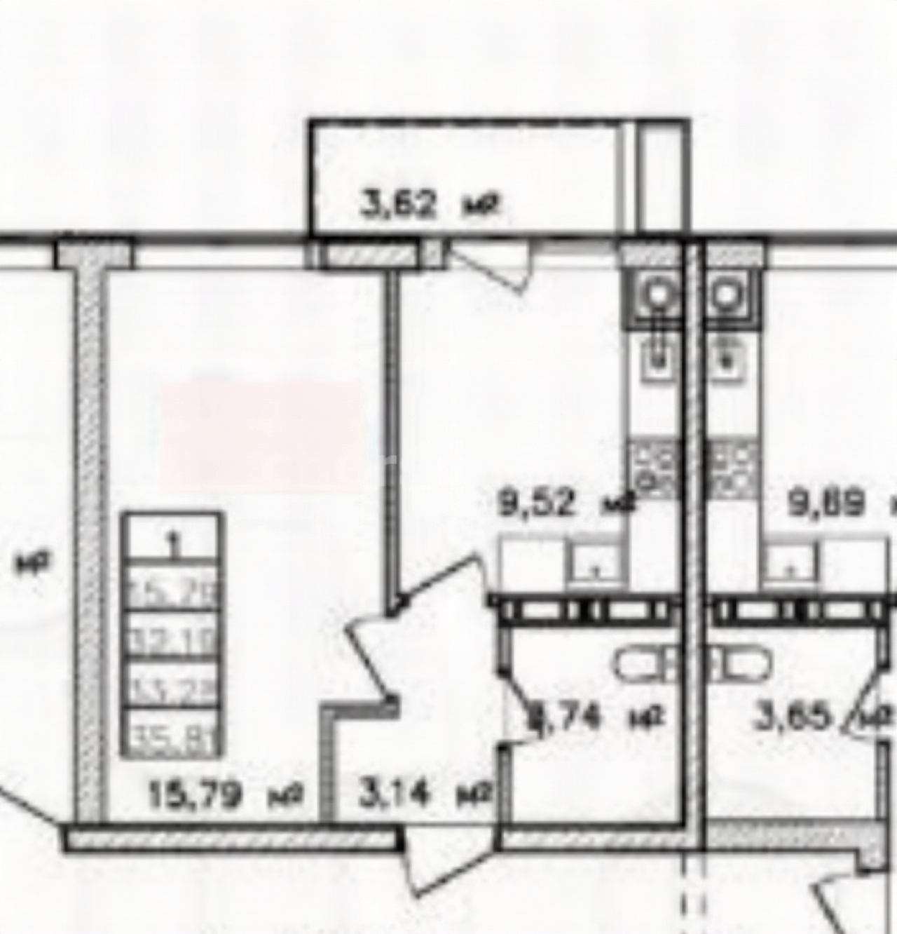
Однокомнатная квартира общей площадью 35,81 м² располагается на 5-м этаже 8-этажного монолитного дома. Комната изолированная, кухня 9,52 м², жилая зона 15,79 м². Высота потолков 2,8 м, окна выходят на улицу, что обеспечивает естественное освещение и просторное ощущение. Есть балкон, который можно обустроить для утреннего кофе и вечерних посиделок.
Планировка и ремонт ✨
Изолированная планировка комнаты, компактная кухня, удобно распланированное пространство. Ремонт выполнен в стильном евроремонте, отделочные материалы современные и практичные.
Комфорт и коммуникации 🚿
Санузел совмещённый, система отопления — АГВ. Потолки 2,8 м создают ощущение свежести и свободы. Монолитные стены обеспечивают хорошую тепло- и шумоизоляцию. Лифт пассажирский, в квартире есть балкон, окна выходят на улицу.
Дом и инфраструктура 🏢
Новый дом городской застройки, монолитная конструкция. Открытая парковка во дворе. Подъезды удобные, двор тихий, инфраструктура района развита для повседневного комфорта.Рядом с домом находится остановка общественного транспрорта, новый детский сад.
Условия сделки и просмотр 🔎
Возможна ипотека. Онлайн просмотр объекта можно организовать по предварительной договоренности — удобно для занятых клиентов. Оперативно согласуем удобное время просмотра и обсудим все детали покупки.
🚶♂️🌆 Преимущества района и комфорт проживания дополняют привлекательность этого варианта: развитая транспортная доступность, близость инфраструктуры, тихий двор и современная планировка.
Оперативно покажу объект и отвечу на все вопросы!
| Сведения о недвижимости | |
|---|---|
| ID | 76327 |
| Этаж | 5 |
| Этажность | 8 |
| Комнат в квартире | 1 |
| Стоимость | 5 500 000 руб. |
| Стоимость за кв.м. | 153 588 руб. |

















