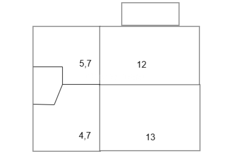
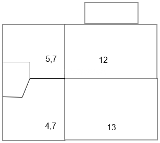
Продажа двухкомнатной квартиры, 40,2 кв.м., 3/5 этаж, улица Брянская, Нахимовский р-н.
Описание
Объект № 75607
Представляем Вам уникальную возможность стать частью легендарного прошлого и современного комфорта одновременно!
Расположение: Нахимовский район, третий бастион обороны Севастополя
Превосходная инфраструктура всего в шаговой доступности:
- Детские сады и школы рядом
- Парк для прогулок всей семьей
- Спортивный стадион для активного отдыха
- Известный исторический памятник — Малахов курган
Удобства повседневной жизни:
- Рядышком магазин и аптека
- Онлайн-шопинг с доставкой прямо домой благодаря пункту выдачи Wildberries
Интерьер мечты уже ждет Вас:
- Профессиональный дизайнерский ремонт
- Современная качественная мебель
- Все готово для комфортного проживания сразу после покупки
Ваш новый адрес станет символом гармонии между историческим наследием и современным комфортом!
Полное юридическое сопровождение сделки!
Звоните чтобы записаться на просмотр!
Сведения о недвижимости | |
---|---|
ID | 75607 |
Этаж | 3 |
Этажность | 5 |
Комнат в квартире | 2 |
Стоимость | 9 995 000 руб. |
Стоимость за кв.м. | 248 632 руб. |

Наталья Алексеевна
Квартиры - Продажа
9 995 000 руб.
248 632 руб. за кв.м.
Похожие предложения

Продажа двухкомнатной квартиры 51 кв. м, 4/5 этаж, улица Курганная, Ленинский р-н
Категория: Квартиры
Тип сделки: Продажа
Адрес: Севастополь, улица Курганная, 24
Площадь: 51 м²
Этаж: 4
Этажность: 5
Стоимость за кв.м.: 195 980 руб.
Стоимость: 9 995 000 руб.

Продажа однокомнатной квартиры 57 кв м, 1/3 этаж улица Нефедова. Центр.
Категория: Квартиры
Тип сделки: Продажа
Адрес: Севастополь, улица Нефедова, 9
Площадь: 57 м²
Этаж: 1
Этажность: 3
Стоимость за кв.м.: 175 351 руб.
Стоимость: 9 995 000 руб.

Продажа однокомнатной квартиры 28,7 кв.м. 5/10 этаж, ул. Адмирала Фадеева
Категория: Квартиры
Тип сделки: Продажа
Адрес: Севастополь, улица Адмирала Фадеева, 48
Площадь: 28.7 м²
Этаж: 5
Этажность: 10
Стоимость за кв.м.: 348 397 руб.
Стоимость: 9 999 000 руб.