Продажа однокомнатной квартиры 22 кв м, 4/5 этаж, ул. Степаняна, Гагаринский район.
Описание
О квартире
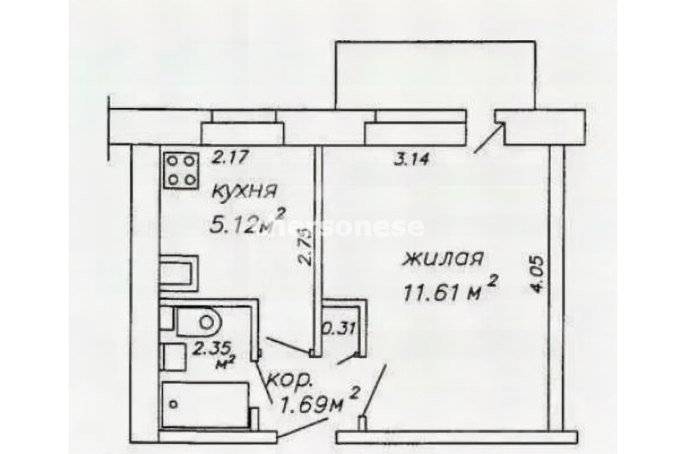
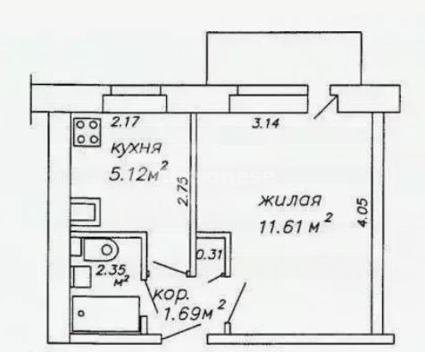
Продается 1‑комнатная квартира. Общая площадь 22 м², жилая 11 м², кухня 5 м². Комната изолированная, санузел совмещенный. Квартира требует ремонта, что позволит вам реализовать свои идеи по оформлению пространства ✨. Высота потолков 2,5 м, окна выходят на улицу.
Дом и инфраструктура
Дом блочный, построен в 1977 году. Квартира расположена на 4 этаже 5‑этажного дома, не последний этаж. Отопление центральное. Во дворе открытая парковка для жильцов 🚗.
Дополнительные преимущества
Есть балкон, в квартире остается часть мебели, что удобно для быстрого заселения. Отличный вариант как для собственного проживания, так и для сдачи в аренду. Возможна покупка в ипотеку, онлайн‑показ по договоренности 💻.
📞Звоните прямо сейчас, чтобы договориться о просмотре и выяснить все детали!
| Сведения о недвижимости | |
|---|---|
| ID | 78754 |
| Этаж | 4 |
| Этажность | 5 |
| Комнат в квартире | 1 |
| Стоимость | 5 250 000 руб. |
| Стоимость за кв.м. | 238 636 руб. |
Оксана Александровна
Квартиры - Продажа
5 250 000 руб.
238 636 руб. за кв.м.
Похожие предложения
Продажа однокомнатной студии 39 кв м, улица Челюскинцев. Северная сторона.
Категория: Квартиры
Тип сделки: Продажа
Адрес: Севастополь, улица Челюскинцев, 57/1
Площадь: 39 м²
Этаж: 1
Этажность: 5
Стоимость за кв.м.: 135 897 руб.
Стоимость: 5 300 000 руб.











