Продажа однокомнатной квартиры 37,5 в.м., 2/2 этаж на улице Ленина. Центр.
Описание
Продаётся уютная однокомнатная квартира с продуманной планировкой в центре города на улице Ленина.
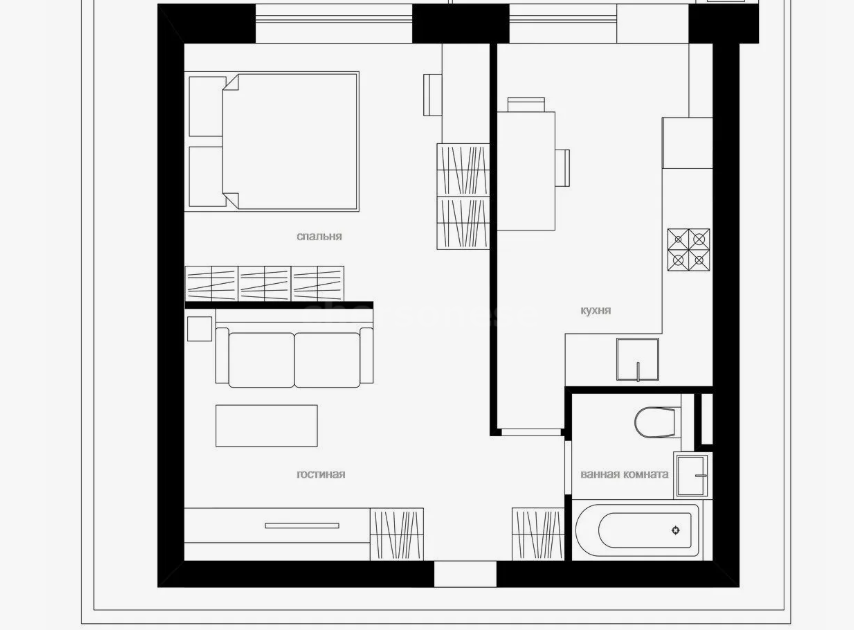
Общая площадь 37,5 кв.м, кухня 8 кв.м, жилая 22 кв.м. Ремонт косметический, квартира готова к въезду и при необходимости легко подойдёт для адаптации под стиль и требования нового хозяина. Наличие мебели позволяет заехать без задержек, а благодаря изолированной комнате и светлым окнам ощущается простор и комфорт. Санузел совмещённый, высота потолков 3,05 м. создаёт ощущение свободы и воздушности. Вид из окна во двор добавляет уюта и спокойствия в ежедневной жизни.
Площадь и планировка
Изолированная комната обеспечивает приватность и удобство размещения спального места, рабочей зоны и зоны отдыха. Кухня отделена и имеет достаточно пространства для полноценной обеденной зоны. Коммуникации и планировка учитывают потребности современного города: практичное использование пространства, разумная зона хранения и возможность обновления интерьера под стиль владельца.
Дом, этажность и характеристики здания
Дом сталинского типа, год постройки 1917, материал стен — блочный. Этажность 2, квартира находится на последнем втором этаже. Центральное отопление сохраняет комфорт в холодные периоды года.
Инфраструктура и условия парковки
За шлагбаумом во дворе организована парковка, что обеспечивает безопасность и удобство для жителей и гостей. Вид во двор способствует спокойной обстановке в дневное и вечернее время. Наличие мебели и косметический ремонт позволяют быстро начать комфортное проживание и адаптацию под потребности арендатора или собственника. Самый центр города!!! Дом уютно расположен во дворе, тихо, зелено и спокойно.
Условия сделки и просмотр
Возможна ипотека — продажа с использованием банковского кредита. Онлайн-показ доступен, что экономит время и позволяет предварительно оценить объект. Готова ответить на вопросы и организовать просмотр в удобное время.
- Оперативно покажу объект и отвечу на все вопросы!
Не ждите повышения цен!
| Сведения о недвижимости | |
|---|---|
| ID | 76174 |
| Этаж | 2 |
| Этажность | 2 |
| Комнат в квартире | 1 |
| Стоимость | 7 500 000 руб. |
| Стоимость за кв.м. | 200 000 руб. |
Снежана Юрьевна
Квартиры - Продажа
7 500 000 руб.
200 000 руб. за кв.м.
Похожие предложения
Продажа однокомнатной квартиры 32 кв м, 2/2 этаж, улица Циолковского.
Категория: Квартиры
Тип сделки: Продажа
Адрес: Севастополь, улица Циолковского, 4
Площадь: 32 м²
Этаж: 2
Этажность: 2
Стоимость за кв.м.: 232 813 руб.
Стоимость: 7 450 000 руб.
Продажа двухкомнатной квартиры 44 кв м, 3/5 этаж, проспект Победы, Нахимовский район.
Категория: Квартиры
Тип сделки: Продажа
Адрес: Севастополь, проспект Победы, 58
Площадь: 44 м²
Этаж: 3
Этажность: 5
Стоимость за кв.м.: 170 227 руб.
Стоимость: 7 490 000 руб.
Продажа однокомнатной квартиры 31 кв.м., 12/16 этаж, ул. Александра Маринеско. Гагаринский район.
Категория: Квартиры
Тип сделки: Продажа
Адрес: Севастополь, улица Александра Маринеско, 1Б/3
Площадь: 31 м²
Этаж: 12
Этажность: 16
Стоимость за кв.м.: 241 613 руб.
Стоимость: 7 490 000 руб.
Продажа двухкомнатной квартиры 45 кв.м., 2/3 этаж, улица Надежды Краевой. Северная
Категория: Квартиры
Тип сделки: Продажа
Адрес: Севастополь, улица Надежды Краевой, 9
Площадь: 45 м²
Этаж: 2
Этажность: 3
Стоимость за кв.м.: 168 889 руб.
Стоимость: 7 600 000 руб.













