Продажа однокомнатной квартиры 39,2 кв.м, 3/9 этаж, Проспект Победы, Нахимовский район.
Описание
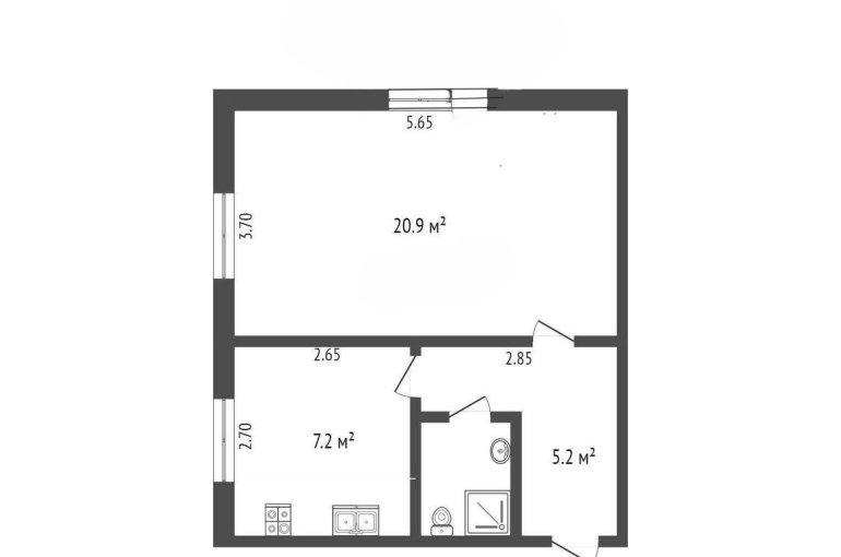
Продается светлая 1‑комнатная квартира площадью 39,2 м² на 3 из 9 этажей.
Высота потолков 2,6 м. Окна смотрят во двор и на улицу, тихо и много света. Есть балкон и отдельная лоджия — удобно для хранения и отдыха.
Планировка и состояние 🛋️
В квартире выполнен косметический ремонт, мебель остается по договоренности — можно заезжать без дополнительных вложений. Функциональная прихожая, продуманное зонирование пространства.
Дом и двор 🏢
Панельный дом «улучшенной» серии, 1998 года постройки, центральное отопление. Ухоженный подъезд и придомовая территория, спокойные соседи. Во дворе открытая парковка, есть зеленые зоны для отдыха.
Локация и условия 🔑
Удобный этаж. Рядом все необходимое для комфортной жизни: магазины, остановки транспорта, места для прогулок. Квартира подходит под ипотеку.
📞Звоните прямо сейчас, чтобы договориться о просмотре и выяснить все детали!
| Сведения о недвижимости | |
|---|---|
| ID | 77398 |
| Этаж | 3 |
| Этажность | 9 |
| Комнат в квартире | 1 |
| Стоимость | 7 099 999 руб. |
| Стоимость за кв.м. | 181 122 руб. |
Виктор Викторович
Квартиры - Продажа
7 099 999 руб.
181 122 руб. за кв.м.
Похожие предложения
Продажа однокомнатной квартиры 36 кв.м., 1/5 этаж на улице Военных Строителей.
Категория: Квартиры
Тип сделки: Продажа
Адрес: Севастополь, улица Военных Строителей, 12/3
Площадь: 36 м²
Этаж: 1
Этажность: 5
Стоимость за кв.м.: 194 444 руб.
Стоимость: 6 999 999 руб.
Продажа двухкомнатной квартиры 44 кв.м., 3/5 этаж, улица Хрусталева. Ленинский район.
Категория: Квартиры
Тип сделки: Продажа
Адрес: Севастополь, улица Хрусталёва, 15А
Площадь: 44 м²
Этаж: 3
Этажность: 5
Стоимость за кв.м.: 159 091 руб.
Стоимость: 6 999 999 руб.
Продажа однокомнатной квартиры 36 кв.м., 2/4 этаж, улица Героев Севастополя.
Категория: Квартиры
Тип сделки: Продажа
Адрес: Севастополь, улица Героев Севастополя, 22
Площадь: 36 м²
Этаж: 2
Этажность: 4
Стоимость за кв.м.: 194 444 руб.
Стоимость: 7 000 000 руб.
Продажа однокомнатной квартиры 42 кв. м, 4/5 этаж на проспекте Победы
Категория: Квартиры
Тип сделки: Продажа
Адрес: Севастополь, проспект Победы, 84
Площадь: 42 м²
Этаж: 4
Этажность: 5
Стоимость за кв.м.: 166 667 руб.
Стоимость: 6 999 999 руб.
Продажа двухкомнатной квартиры 45 кв.м., 3/4 этаж на улице Истомина. Нахимовский район.
Категория: Квартиры
Тип сделки: Продажа
Адрес: Севастополь, улица Истомина, 14
Площадь: 45 м²
Этаж: 3
Этажность: 4
Стоимость за кв.м.: 159 889 руб.
Стоимость: 7 195 000 руб.











