Продажа однокомнатной квартиры, 40 кв м, 4/5 этаж, улица Генерала Коломийца.
Описание
Представляю вашему вниманию однокомнатную квартиру в современном доме 2015 года постройки, по адресу: ул. Генерала Коломийца.
Квартира предлагается в черновой отделке.
Преимущества, которые вы оцените:
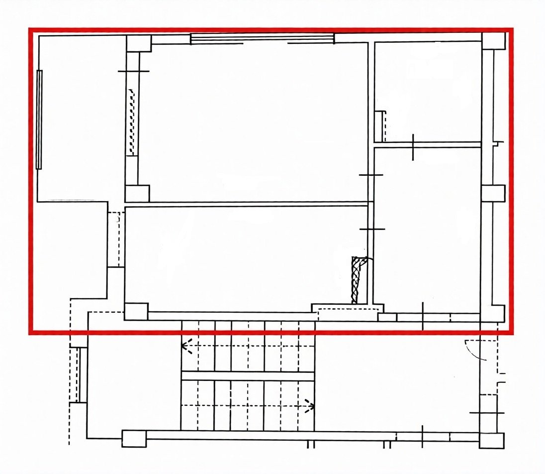
Продуманная планировка: изолированная комната правильной формы (12,5 м²) с выходом на большую лоджию, широкий коридор (6,9 м²) с удобным местом под шкаф-купе и совмещенный санузел (4 м²).
Высокие потолки: 2,75 м.
Комфорт и экономия:
Центральное водоснабжение и автономное газовое отопление (АГВ) обеспечат тепло и уют в любое время года.
Благоустроенный двор: чистый подъезд, доброжелательные соседи, достаточное количество парковочных мест и современная детская площадка.
Развитая инфраструктура для вашего удобства:
Дом расположен в районе с отличной транспортной доступностью – остановка общественного транспорта находится практически у дома. В шаговой доступности расположены детские сады, школы, гимназии, крупнейший рынок Севастополя, салоны красоты и медицинские клиники. Всего 5 минут до спортивного клуба, 10 минут до торговых центров Sea Mall и «Апельсин», а также до центра города. До живописных пляжей Севастополя можно добраться всего за 20 минут на транспорте.
Идеальный выбор для жизни и инвестиций:
Эта квартира подходит как для собственного проживания, так и для выгодной сдачи в аренду. Мы предлагаем гибкие условия покупки: наличный расчет, ипотека, материнский капитал и жилищные сертификаты. Все документы РФ проверены юристами и полностью готовы к сделке. Мы гарантируем профессиональное сопровождение на всех этапах оформления права собственности.
Не упустите свой шанс стать обладателем этой замечательной квартиры! Звоните прямо сейчас, чтобы узнать подробности и договориться о просмотре!
| Сведения о недвижимости | |
|---|---|
| ID | 78272 |
| Этаж | 4 |
| Этажность | 5 |
| Комнат в квартире | 1 |
| Стоимость | 6 990 000 руб. |
| Стоимость за кв.м. | 174 750 руб. |
Нина Сергеевна
Квартиры - Продажа
6 990 000 руб.
174 750 руб. за кв.м.
Похожие предложения
Продажа двухкомнатной квартиры 44 кв.м., 3/5 этаж, улица Хрусталева. Ленинский район.
Категория: Квартиры
Тип сделки: Продажа
Адрес: Севастополь, улица Хрусталёва, 15А
Площадь: 44 м²
Этаж: 3
Этажность: 5
Стоимость за кв.м.: 159 091 руб.
Стоимость: 6 999 999 руб.
Продажа однокомнатной квартиры 42 кв. м, 4/5 этаж на проспекте Победы
Категория: Квартиры
Тип сделки: Продажа
Адрес: Севастополь, проспект Победы, 84
Площадь: 42 м²
Этаж: 4
Этажность: 5
Стоимость за кв.м.: 166 667 руб.
Стоимость: 6 999 999 руб.
Продажа однокомнатной квартиры 35.5 кв.м., 5/5 на улице Руднева. Ленинский район.
Категория: Квартиры
Тип сделки: Продажа
Адрес: Севастополь, улица Руднева, 7
Площадь: 35.5 м²
Этаж: 5
Этажность: 5
Стоимость за кв.м.: 194 085 руб.
Стоимость: 6 890 000 руб.












