Продажа 1-комнатных апартаментов 66,29 кв м, 2/9 этаж, улица Парковая. Гагаринский район.
Описание
В Гагаринском районе Севастополя на берегу Черного моря находится апарт-комплекс премиум-класса Cosmos Stay — уникальный объект с доходностью свыше 23% годовых. Комплекс предлагает комфортное проживание и выгодные инвестиции. Рядом — три пляжа, парк Победы, набережная и аквапарк "Зурбаган", что делает локацию привлекательной.
"Cosmos Stay" — уникальный комплекс с круглосуточным подогреваемым бассейном, спа-центром (сауна, хамам, массаж), спортивными площадками, детскими игровыми зонами и фитнес-залом. Гостям доступны тематические рестораны, бары, кофейни и кондитерские. Для отдыха предусмотрены уютные зоны с ландшафтным дизайном и удобная парковка (подземная и наземная).
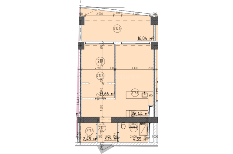
В продаже имеются апартаменты с полной отделкой, бытовой техникой, текстильным инвентарем и мебелью в жилом комплексе "Cosmos Stay" премиум-класса. Общая площадь составляет 66,29 кв.м., при этом кухня занимает 26,44 кв.м. Все окна выходят на одну сторону. В квартире есть лоджия и санузел. Высота потолков достигает 2.9 м.
Есть отельное обслуживание: собственнику - 60%, оператору - 40%. Первые 3 года собственник не платит коммунальные услуги.
📝 Полная сумма в договоре, прямая продажа!
💥 Без комиссии, все оплачивает застройщик!
📇 Если покупаете через нашу компанию, осуществляем приёмку квартиры!
❌ С агентствами не сотрудничаем, просьба не звонить!
| Сведения о недвижимости | |
|---|---|
| ID | 77424 |
| Комнат в квартире | 1 |
| Площадь, кв.м. | 66.29 |
| Этаж | 2 |
| Этажность | 9 |
| Стоимость | 37 785 300 руб. |
| Стоимость за кв.м. | 570 000 руб. |





