Продажа студии 30,21 кв м, 2/9 этаж, улица Парковая. Гагаринский район.
Описание
В Гагаринском районе Севастополя на берегу Черного моря находится апарт-комплекс премиум-класса Cosmos Stay — уникальный объект с доходностью свыше 23% годовых. Комплекс предлагает комфортное проживание и выгодные инвестиции. Рядом — три пляжа, парк Победы, набережная и аквапарк "Зурбаган", что делает локацию привлекательной.
"Cosmos Stay" — уникальный комплекс с круглосуточным подогреваемым бассейном, спа-центром (сауна, хамам, массаж), спортивными площадками, детскими игровыми зонами и фитнес-залом. Гостям доступны тематические рестораны, бары, кофейни и кондитерские. Для отдыха предусмотрены уютные зоны с ландшафтным дизайном и удобная парковка (подземная и наземная).
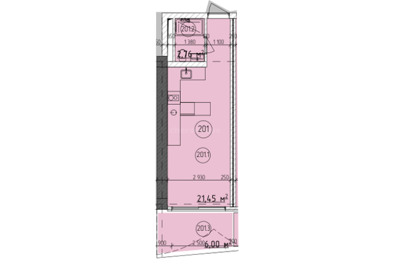
В продаже имеются апартаменты с полной отделкой, бытовой техникой, текстильным инвентарем и мебелью в жилом комплексе "Cosmos Stay" премиум-класса. Общая площадь составляет 30,21 кв.м., при этом кухня занимает 19,5 кв.м. Все окна выходят на одну сторону. В квартире есть лоджия и санузел. Высота потолков достигает 2.9 м.
Есть отельное обслуживание: собственнику - 60%, оператору - 40%. Первые 3 года собственник не платит коммунальные услуги.
📝 Полная сумма в договоре, прямая продажа!
💥 Без комиссии, все оплачивает застройщик!
❌ С агентствами не сотрудничаем, просьба не звонить!
| Сведения о недвижимости | |
|---|---|
| ID | 77407 |
| Комнат в квартире | Студия |
| Площадь, кв.м. | 30.21 |
| Этаж | 2 |
| Этажность | 9 |
| Стоимость | 17 521 800 руб. |
| Стоимость за кв.м. | 580 000 руб. |
Топ-менеджер
Новостройки - Продажа
17 521 800 руб.
580 000 руб. за кв.м.
Похожие предложения
Продажа студии 30,13 кв м, 3/9 этаж, улица Парковая. Гагаринский район.
Категория: Новостройки
Тип сделки: Продажа
Адрес: Севастополь, улица Парковая, 5
Площадь: 30.13 м²
Этаж: 3
Этажность: 9
Название ЖК: Cosmos Stay
Стоимость за кв.м.: 580 000 руб.
Стоимость: 17 475 400 руб.
Продажа студии 30,24 кв м, 3/9 этаж, улица Парковая. Гагаринский район.
Категория: Новостройки
Тип сделки: Продажа
Адрес: Севастополь, улица Парковая, 5
Площадь: 30.24 м²
Этаж: 3
Этажность: 9
Название ЖК: Cosmos Stay
Стоимость за кв.м.: 580 000 руб.
Стоимость: 17 539 200 руб.
Продажа студии 30,05 кв м, 3/9 этаж, улица Парковая. Гагаринский район.
Категория: Новостройки
Тип сделки: Продажа
Адрес: Севастополь, улица Парковая, 5
Площадь: 30.05 м²
Этаж: 3
Этажность: 9
Название ЖК: Cosmos Stay
Стоимость за кв.м.: 580 000 руб.
Стоимость: 17 429 000 руб.
Продажа студии 60,6 кв м, 3/5 этаж, улица Летчиков. Гагаринский район.
Категория: Новостройки
Тип сделки: Продажа
Адрес: Севастополь, улица Летчиков, 10
Площадь: 60.6 м²
Этаж: 3
Этажность: 5
Название ЖК: Гарден
Стоимость за кв.м.: 290 099 руб.
Стоимость: 17 580 000 руб.





