ЖК «Александрия»
Описание
Жилой дом «Александрия» представляет собой девятиэтажный многоквартирный комплекс комфорт-класса, расположенный в городской черте. В здании насчитывается 42 квартиры, из которых 28 — однокомнатные, а остальные 14 — с двумя комнатами. Общая площадь жилья достигает 1 921 квадратный метр, а стены построены из панельных конструкций. Кроме жилых помещений, в здании предусмотрено 10 коммерческих или нежилых комнат.
Для жителей комплекса организована вся необходимая инфраструктура, обеспечивающая удобство и комфорт. Особое внимание уделено доступности — установлены пандусы и специальные понижающие площадки для людей с ограниченными возможностями. Любители активного отдыха найдут здесь оборудованные детскую и спортивную зоны. Для хранения мусора оборудованы специальные площадки, а автомобилисты могут воспользоваться шестью гостевыми парковочными местами.
Жить в престижном Гагаринском районе — редкий шанс для тех, кто мечтает о спокойствии вдали от шумных центральных улиц. Этот жилой комплекс предлагает идеальные условия для комфортного городского существования в уютной и тихой атмосфере.
| Сведения о недвижимости | |
|---|---|
| Название ЖК | Александрия |
| Этажность | 9 |
| Апартаменты | Нет |
| Стоимость | 8 796 200 |
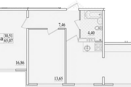
Продажа 1-комнатной квартиры 36,0401 кв м, 2/12 этаж, улица Колобова. Гагаринский район.
Категория: Новостройки
Тип сделки: Продажа
Адрес: Севастополь, улица Колобова, 44
Площадь: 36.04 м²
Этаж: 2
Этажность: 12
Комнат в квартире: 1
Стоимость за кв.м.: 258 047 руб.
Стоимость: 9 300 000 руб.
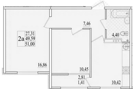
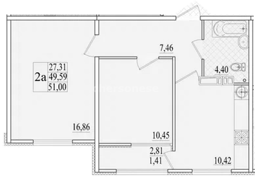
Продажа 2-комнатной квартиры 68,73 кв м, 3/12 этаж, улица Колобова. Гагаринский район.
Категория: Новостройки
Тип сделки: Продажа
Адрес: Севастополь, улица Колобова, 44
Площадь: 68.73 м²
Этаж: 3
Этажность: 12
Комнат в квартире: 2
Стоимость за кв.м.: 190 000 руб.
Стоимость: 13 058 700 руб.
Продажа 2-комнатной квартиры 66,666 кв м, 5/12 этаж, улица Колобова. Гагаринский район.
Категория: Новостройки
Тип сделки: Продажа
Адрес: Севастополь, улица Колобова, 44
Площадь: 66.66 м²
Этаж: 5
Этажность: 12
Комнат в квартире: 2
Стоимость за кв.м.: 196 000 руб.
Стоимость: 13 065 360 руб.
Продажа 2-комнатной квартиры 66,665 кв м, 6/12 этаж, улица Колобова. Гагаринский район.
Категория: Новостройки
Тип сделки: Продажа
Адрес: Севастополь, улица Колобова, 44
Площадь: 66.66 м²
Этаж: 6
Этажность: 12
Комнат в квартире: 2
Стоимость за кв.м.: 196 000 руб.
Стоимость: 13 065 360 руб.
Продажа 2-комнатной квартиры 66,664 кв м, 7/12 этаж, улица Колобова. Гагаринский район.
Категория: Новостройки
Тип сделки: Продажа
Адрес: Севастополь, улица Колобова, 44
Площадь: 66.66 м²
Этаж: 7
Этажность: 12
Комнат в квартире: 2
Стоимость за кв.м.: 196 000 руб.
Стоимость: 13 065 360 руб.
Продажа 2-комнатной квартиры 66,663 кв м, 9/12 этаж, улица Колобова. Гагаринский район.
Категория: Новостройки
Тип сделки: Продажа
Адрес: Севастополь, улица Колобова, 44
Площадь: 66.66 м²
Этаж: 9
Этажность: 12
Комнат в квартире: 2
Стоимость за кв.м.: 196 000 руб.
Стоимость: 13 065 360 руб.
Продажа 2-комнатной квартиры 66,662 кв м, 10/12 этаж, улица Колобова. Гагаринский район.
Категория: Новостройки
Тип сделки: Продажа
Адрес: Севастополь, улица Колобова, 44
Площадь: 66.66 м²
Этаж: 10
Этажность: 12
Комнат в квартире: 2
Стоимость за кв.м.: 196 000 руб.
Стоимость: 13 065 360 руб.
Продажа 2-комнатной квартиры 66,661 кв м, 11/12 этаж, улица Колобова. Гагаринский район.
Категория: Новостройки
Тип сделки: Продажа
Адрес: Севастополь, улица Колобова, 44
Площадь: 66.66 м²
Этаж: 11
Этажность: 12
Комнат в квартире: 2
Стоимость за кв.м.: 196 000 руб.
Стоимость: 13 065 360 руб.
Продажа 2-комнатной квартиры 66,66 кв м, 12/12 этаж, улица Колобова. Гагаринский район.
Категория: Новостройки
Тип сделки: Продажа
Адрес: Севастополь, улица Колобова, 44
Площадь: 66.66 м²
Этаж: 12
Этажность: 12
Комнат в квартире: 2
Стоимость за кв.м.: 196 000 руб.
Стоимость: 13 065 360 руб.
Продажа 2-комнатной квартиры 60,322 кв м, 2/12 этаж, улица Колобова. Гагаринский район.
Категория: Новостройки
Тип сделки: Продажа
Адрес: Севастополь, улица Колобова, 44
Площадь: 60.32 м²
Этаж: 2
Этажность: 12
Комнат в квартире: 2
Стоимость за кв.м.: 213 000 руб.
Стоимость: 12 848 160 руб.
Продажа 2-комнатной квартиры 60,321 кв м, 3/12 этаж, улица Колобова. Гагаринский район.
Категория: Новостройки
Тип сделки: Продажа
Адрес: Севастополь, улица Колобова, 44
Площадь: 60.32 м²
Этаж: 3
Этажность: 12
Комнат в квартире: 2
Стоимость за кв.м.: 213 000 руб.
Стоимость: 12 848 160 руб.
Продажа 2-комнатной квартиры 60,32 кв м, 4/12 этаж, улица Колобова. Гагаринский район.
Категория: Новостройки
Тип сделки: Продажа
Адрес: Севастополь, улица Колобова, 44
Площадь: 60.32 м²
Этаж: 4
Этажность: 12
Комнат в квартире: 2
Стоимость за кв.м.: 213 000 руб.
Стоимость: 12 848 160 руб.
Продажа 2-комнатной квартиры 58,266 кв м, 5/12 этаж, улица Колобова. Гагаринский район.
Категория: Новостройки
Тип сделки: Продажа
Адрес: Севастополь, улица Колобова, 44
Площадь: 58.26 м²
Этаж: 5
Этажность: 12
Комнат в квартире: 2
Стоимость за кв.м.: 221 000 руб.
Стоимость: 12 875 460 руб.
Продажа 2-комнатной квартиры 58,265 кв м, 6/12 этаж, улица Колобова. Гагаринский район.
Категория: Новостройки
Тип сделки: Продажа
Адрес: Севастополь, улица Колобова, 44
Площадь: 58.26 м²
Этаж: 6
Этажность: 12
Комнат в квартире: 2
Стоимость за кв.м.: 221 000 руб.
Стоимость: 12 875 460 руб.
Продажа 2-комнатной квартиры 58,264 кв м, 7/12 этаж, улица Колобова. Гагаринский район.
Категория: Новостройки
Тип сделки: Продажа
Адрес: Севастополь, улица Колобова, 44
Площадь: 58.26 м²
Этаж: 7
Этажность: 12
Комнат в квартире: 2
Стоимость за кв.м.: 221 000 руб.
Стоимость: 12 875 460 руб.
Продажа 2-комнатной квартиры 58,263 кв м, 8/12 этаж, улица Колобова. Гагаринский район.
Категория: Новостройки
Тип сделки: Продажа
Адрес: Севастополь, улица Колобова, 44
Площадь: 58.26 м²
Этаж: 8
Этажность: 12
Комнат в квартире: 2
Стоимость за кв.м.: 221 000 руб.
Стоимость: 12 875 460 руб.
Продажа 2-комнатной квартиры 58,262 кв м, 10/12 этаж, улица Колобова. Гагаринский район.
Категория: Новостройки
Тип сделки: Продажа
Адрес: Севастополь, улица Колобова, 44
Площадь: 58.26 м²
Этаж: 10
Этажность: 12
Комнат в квартире: 2
Стоимость за кв.м.: 221 000 руб.
Стоимость: 12 875 460 руб.
Продажа 2-комнатной квартиры 58,261 кв м, 11/12 этаж, улица Колобова. Гагаринский район.
Категория: Новостройки
Тип сделки: Продажа
Адрес: Севастополь, улица Колобова, 44
Площадь: 58.26 м²
Этаж: 11
Этажность: 12
Комнат в квартире: 2
Стоимость за кв.м.: 221 000 руб.
Стоимость: 12 875 460 руб.
Продажа 2-комнатной квартиры 58,26 кв м, 12/12 этаж, улица Колобова. Гагаринский район.
Категория: Новостройки
Тип сделки: Продажа
Адрес: Севастополь, улица Колобова, 44
Площадь: 58.26 м²
Этаж: 12
Этажность: 12
Комнат в квартире: 2
Стоимость за кв.м.: 221 000 руб.
Стоимость: 12 875 460 руб.
Продажа 1-комнатной квартиры 34,7908 кв м, 5/12 этаж, улица Колобова. Гагаринский район.
Категория: Новостройки
Тип сделки: Продажа
Адрес: Севастополь, улица Колобова, 44
Площадь: 34.79 м²
Этаж: 5
Этажность: 12
Комнат в квартире: 1
Стоимость за кв.м.: 261 000 руб.
Стоимость: 9 080 190 руб.





