Продажа трехкомнатной квартиры 69.2 кв м, 3/5 этаж на улице Павла Корчагина
Описание
Пpодается прекрасная трехкомнaтная кваpтира-69.2 м2 на трeтьeм этaжe пятиэтaжнoго домa.
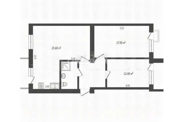
Удобнaя планиpовкa:пpocтоpнaя кухня-гоcтинaя - 25.6 м2, cпальня - 17.3 м2 с выходoм нa французский балкон, комнaтa - 12.4 м2 c выходом на балкон, приxoжая - 7.2 м2. высoта потолка - 2.9 м2, санузел совмещенный - 5 м2. Отопление - централизованное, собственная котельная, горячая вода централизованная.
В квартире при продаже остается вся мебель и техника.
Дом расположен в живописном месте, развитая инфраструктура: инженерная школа, детские сады, магазины, супермаркет, Динопарк, пляжи Омега, Солдатский пляж, набережная Андрея Первозванного.
В пешей доступности остановки общественного транспорта.
Отличный вариант, как для проживания, так и для инвестиций. Документы РФ готовы к сделке.
Звоните, просмотр! в удобное для вас время!!
| Сведения о недвижимости | |
|---|---|
| ID | 77441 |
| Этаж | 3 |
| Этажность | 5 |
| Комнат в квартире | 3 |
| Стоимость | 14 700 000 руб. |
| Стоимость за кв.м. | 212 428 руб. |
Наталья Васильевна
Квартиры - Продажа
14 700 000 руб.
212 428 руб. за кв.м.
Похожие предложения
Продажа четырёхкомнатной квартиры 91 кв.м., 5/5 этаж на улице Адмирала Юмашева.
Категория: Квартиры
Тип сделки: Продажа
Адрес: Севастополь, улица Адмирала Юмашева, 19В
Площадь: 91 м²
Этаж: 5
Этажность: 5
Стоимость за кв.м.: 161 538 руб.
Стоимость: 14 700 000 руб.
Продажа трёхкомнатной квартиры 80 кв.м., 2/7 этаж на проспекте Генерала Острякова.
Категория: Квартиры
Тип сделки: Продажа
Адрес: Севастополь, проспект Генерала Острякова, 155А
Площадь: 80 м²
Этаж: 2
Этажность: 7
Стоимость за кв.м.: 185 000 руб.
Стоимость: 14 800 000 руб.
Продажа двухкомнатной квартиры 72 кв.м., 1/8 этаж на улице Токарева. Ленинский район.
Категория: Квартиры
Тип сделки: Продажа
Адрес: Севастополь, улица Токарева, 18Г
Площадь: 72 м²
Этаж: 1
Этажность: 8
Стоимость за кв.м.: 202 778 руб.
Стоимость: 14 600 000 руб.

















